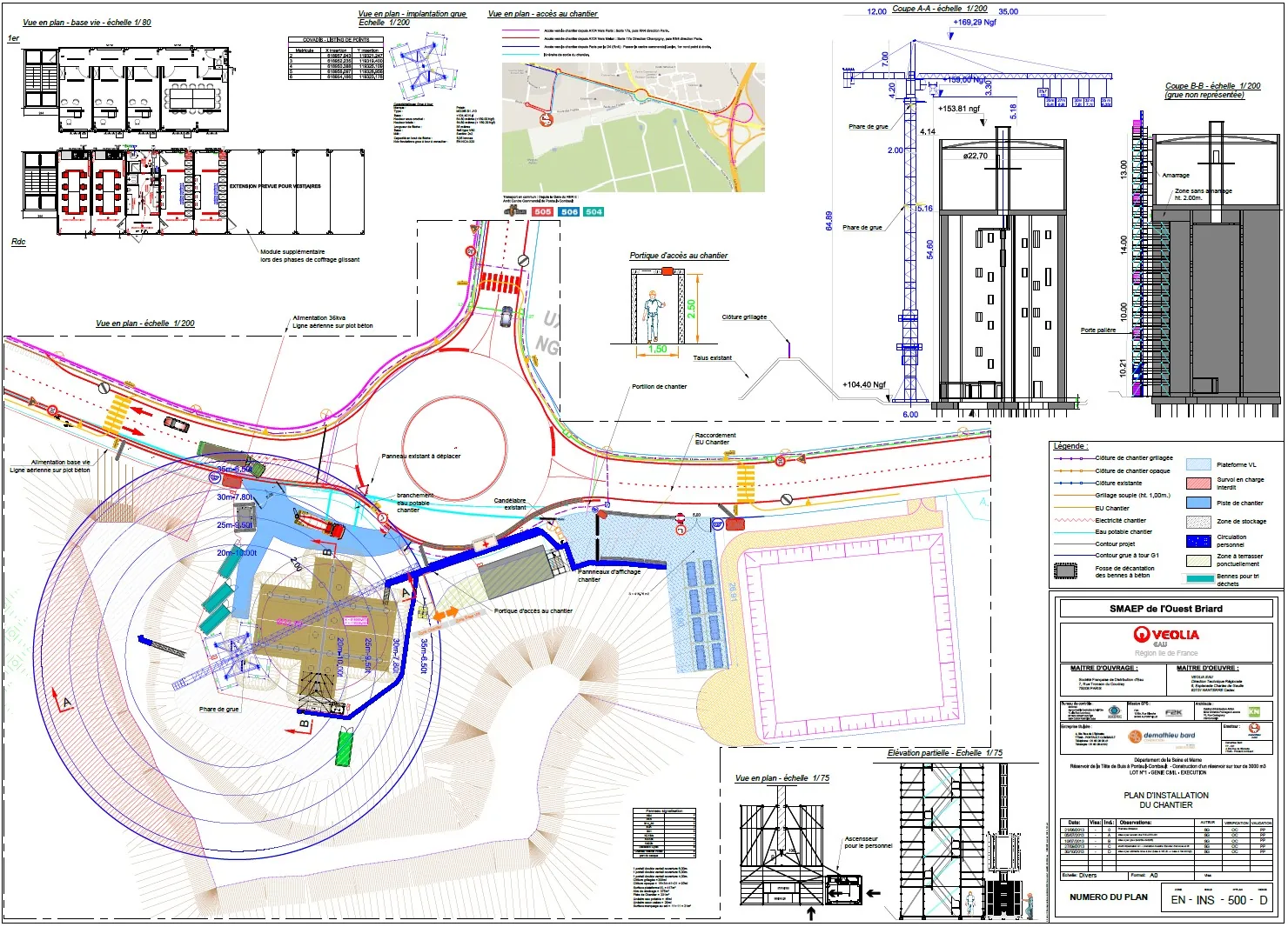
Le plan d’installation de chantier

Le plan d’installation de chantier (communément nommé PIC) est généralement établi par l’entreprise de gros-œuvre, le lot chargé de la conception de ce dernier étant désigné dans les pièces écrites du Dossier de Consultation des Entreprises (DCE).
Ce document sera utilisé dans un grand nombre de phases de la construction :
- En phase DCE : de plus en plus, la maîtrise d’œuvre établi un plan d’installation de chantier prévisionnel. Il sert de guide aux entreprises remettant leurs offres de prix et permet de mettre l’accent sur certaines spécificités organisationnelles du projet.
- En phase Étude de prix : l’entreprise va réfléchir à son installation de son chantier. Si elle est dotée d’un service méthodes, ce dernier sera généralement sollicité pour l’établissement du PIC. Il en découle une fiabilité accrue de la partie " frais de chantier " dans l’offre de prix faite au client. Associé au mémoire technique, ce plan d’installation de chantier a donc un fort intérêt commercial permettant de défendre la qualité technique de l’offre.
- En phase EXE : l’entreprise désignée utilise la " période de préparation " prévue au marché pour finaliser son plan et installer son chantier en conséquence. Lorsque les travaux seront lancés, ce plan sera un support de discussions pour l’ensemble des entreprises intervenant sur le chantier (livraisons, phasage, etc.)
Le contenu du plan d’installation de chantier
Dessin du plan d’installation de chantier
Il est possible de dessiner un plan d’installation de chantier au moyen de logiciels généralistes comme AutoCAD ou un de ses équivalents, mais il existe également des logiciels de plan d’installation de chantier spécialisés.
Le fond de plan
Le " fond de plan " sert de point de départ à l’établissement du PIC. C’est au service méthodes de créer son propre fond de plan. Ce dernier doit être constitué de :
- la représentation du terrain actuel (plan topographique)
- la représentation des ouvrages à construire (plan de masse)
Les clôtures
La réglementation impose la fermeture complète du chantier au public. Il est donc indispensable de représenter les clôtures sur le PIC en précisant :
- le type : clôtures grillagées / clôtures en bacs aciers,
- la hauteur,
- les moyens d’accès au chantier : portails, portillons,
Les moyens de levage
Organe vital d’un chantier de construction, la grue doit absolument figurer sur le PIC, quel que soit son type (Grue à Montage Automatisé, Grue à Montage par Éléments, ou Grue Mobile).
Ses caractéristiques doivent être indiquées :
- longueur de flèche,
- hauteur du mat,
- implantation en X, Y et Z,
- marque, modèle, type d’embase, type de fût,
- tableau des capacités de levage en fonction de la distance,
- courbes des capacités de levage (par pas de 5 mètres généralement)
L’interface entre la grue et son environnement doit être très clairement explicitée sur le plan. Aussi, il faudra absolument représenter tout obstacle avoisinant (bâtiment, arbre, autre grue…) en vue en plan et en élévation.
La réglementation française impose une distance de sécurité minimale de 2m en tout point entre la grue et les obstacles fixes ou mobiles avoisinants.
L’ensemble des mesures retenues par l’entreprise afin de permettre la giration et le travail de la grue en toute sécurité doit figurer sur le plan :
- zone de survol en charge interdit (gérée par un système spécialisé),
- zone d’interférence entre grues (gérées par un système spécialisé),
- et toute autre mesure de sécurité..
S’agissant de manutention lourde, le coordonnateur SPS (Sécurité et Protection de la Santé) sera très vigilant à cet outil de travail et à son intégration dans l’environnement proche. Attention à prendre en compte le montage et le démontage de la grue (emprise de la grue mobile venant démonter la grue à tour par exemple) !
Note importante sur l’accessibilité des grues, en France et depuis 2017, les grues à tour dont la hauteur dépasse 30m doivent être équipées d’ascenseurs : voir notre article dédié à ces obligations pour les grues à tour.
La base vie
L’entreprise est tenue de mettre à disposition de ses salariés une base vie de composition et de qualité conforme à la réglementation. Quantitativement, celle-ci doit notamment comprendre :
- des réfectoires : 1.25m²/personne,
- des vestiaires : 1.25m²/personne,
- des sanitaires : 1 cabinet et 1 urinoir pour 20 personnes, 1 lavabo pour 10),
- des bureaux en nombre suffisant,
- et tout autre module demandé par la maitrise d’œuvre.
Il convient d’abriter les circulations entre bungalows pour protéger les ouvriers des intempéries. Afin de préserver les zones de stockage et par précaution, il est préférable de positionner la base-vie hors de la zone de survol de la grue.
Les réseaux de chantier
La base vie doit au minimum être raccordée en :
- eaux usées (EU)
- eau potable (AEP)
- électricité (EDF)
- téléphonie (PTT)
Le plan d’installation doit préciser l’origine supposée de ces raccordements de chantier. En phase étude de prix, on ira visiter le terrain pour repérer les différents points de raccordement. Les services techniques de la commune peut également fournir des informations utiles. En phase EXE et suite à la DICT, le distributeur vous fournira toutes les informations sur le positionnement des réseaux. Eux seuls sont habilités pour vous dire où votre chantier doit se raccorder. Pensez à les solliciter le plus tôt possible…
Les flux
Les circulations piétonnes doivent être matérialisées. Celles-ci doivent permettre durant toute la phase de construction les circulations suivantes :
- base vie > zone de travail
- base vie > grue
- base vie > lieux de stationnement des véhicules personnels
- zone de travail > centrale à béton
- zone de travail > zone de stockage
- et l’ensemble des cheminements qui seront réalisés pas les ouvriers.
Ces circulations doivent être dégagées, maintenues propres, sécurisées contre les chutes de hauteur et les chutes de plain-pied, et les déclivités doivent être contrecarrées par la présence d’escaliers de chantier.
Plan de circulations d’engins sur installation de chantier 3D – Dylan MARTINS
Les circulations de véhicules de chantier doivent apparaitre sur le PIC. Le plan de circulation doit être cohérent, dans le respect :
- du code de la route (accès au chantier),
- des gabarits et épures de giration des engins de chantier (25m de diamètre extérieur pour un semi-remorque)
- de la sécurité des autres véhicules et des piétons présents sur le chantier et dans les circulations voisines.
Tout croisement de ces deux flux sera à prendre très au sérieux et des mesures seront impérativement prises pour assurer la sécurité des travailleurs (passage piétons, feux tricolores…)
Les matériaux et matériels
Les aires de stockage devront figurer sur le plan d’installation de chantier. Il sera précisé le type de matériel/matériau qui y sera stocké, la surface disponible, et les mesures prises pour protéger l’environnement (géotextile, surface bétonnée, …).
Pour un chantier de gros œuvre, il convient de prévoir les surfaces suivantes :
- aire de stockage des treillis soudés,
- aire de stockage des aciers façonnés,
- aire de stockage de coffrages verticaux/horizontaux,
- aires de stockage pour les corps d’états incorporateurs,
- toute autre zone s’avérant utile au vue des activités du chantier.
La PIC devra indiquer la position et les caractéristiques des différents matériels présents sur site, et notamment :
- la centrale à béton,
- les containers (" magasins “),
- les signalisations.
Il sera vérifié que ces matériels n’entravent pas :
- les flux de chantier (attention au bras raclant de la centrale à béton et aux flux piétons),
- la giration de la grue (attention à la hauteur du silo à ciment en cas de dénivelé important !)
- l’avancement du chantier (maintenir une bonne distance avec les ouvrages à construire)
Gestion environnementale
A l’heure des chantiers HQE (Haute Qualité Environnementale) et du développement durable, il est essentiel d’indiquer les mesures retenues sur le plan d’installation de chantier, et notamment :
- les solutions de traitement des eaux chargées en ciment,
- les zones de tri des déchets,
- les moyens de stockage et de traitement des polluants.
L’élévation générale
Un installation ne se fait par qu’en plan. L’altimétrie des différents organes du chantier est extrêmement importante. Vous devrez impérativement réaliser une élévation générale sur laquelle seront représentés au minimum les éléments suivants :
- une façade ou coup du bâtiment à réaliser,
- la ou les grue(s),
- la ou les centrale(s) à béton,
- les obstacles environnants (arbres, bâtiments, grue d’un chantier voisin)
Les niveaux NGF suivants seront indiqués :
- le point le plus haut des ouvrages à réaliser sous chacune des grues,
- le niveau d’assise de chacune des grues,
- l’altitude du crochet de chacune des grues,
- l’altitude du point le plus haut de chacune des grues,
- l’altitude du point le plus haut de chaque obstacle (centrale à béton, arbre, bâtiment…)
Votre élévation doit absolument être à l’échelle en Z. Par contre, ne vous souciez pas trop de l’échelle en X. On parle ici uniquement d’altimétrie.
Pour un chantier à 3 grues, vous ne pourrez pas indiquer les distances réelles entre toutes les grues puisqu’elles ne sont pas coplanaires.

Plan d’installation de chantier – Élévation sur grues
Les coupes
Les coupes servent justement à avoir une représentation à l’échelle en Z ET en X. Réalisez autant de coupe que nécessaire. Comme pour un plan BA, une coupe apporte souvent bien des éclaircissements et évite de nombreuses incompréhensions de plan.
Vous réaliserez une coupe par couple de grues en interférences (pas utile si moins de 3 grues car votre élévation peut alors être mise à l’échelle en X).
Cette coupe devra passer à l’axe de chaque grue et préciser au minimum :
- les niveaux NGF des grues, évoqués précédemment,
- le niveau du point le plus haut de chaque obstacle survolé par chacune des grues,
- la distance entre le crochet de chaque grue et les obstacles en question (2m minimum en prenant en compte les élingues et la charge),
- la distance entre le crochet de la grue haute et le dessus de la grue basse (2m minimum),
- la distance entre le bout de flèche de la grue basse et le fut de la grue haute (2m minimum),
Validez l’ensemble de ces élévations et coupes en fonction des dispositions réglementaires en vigueur.
Check-list de validation d’un PIC
Le plan d’installation de chantier est un document très engageant. Il est absolument nécessaire de ne rien oublier sur document, j’ai donc préparé pour vous une ckeck-list de validation de PIC à retrouver dans mon livre Préparer un Chantier de Bâtiment.
Exemples de plans d’installation de chantier
Plan d’installation de chantier – Thiago Correia M3DEV
Installation de chantier 3D
Crédits : James Bowles at Freeform
www.freeform4d.co.uk
Modélisation d’une installation de chantier 3D sur le logiciel Méthodes+ de So.build
Plan de circulation de chantier 3D
Crédits : James Bowles at Freeform
www.freeform4d.co.uk